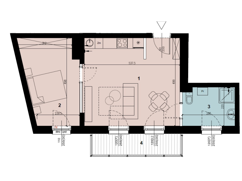
Wolne Mieszkanie M.1.3 Budynek B1 Piętro 1 Powierzchnia 47,55 m2 Pokoje 2 Aneks kuchenny 675 210 zł 14 200 zł / m2 Cena brutto (VAT 8%) Historia ceny Prospekt informacyjny