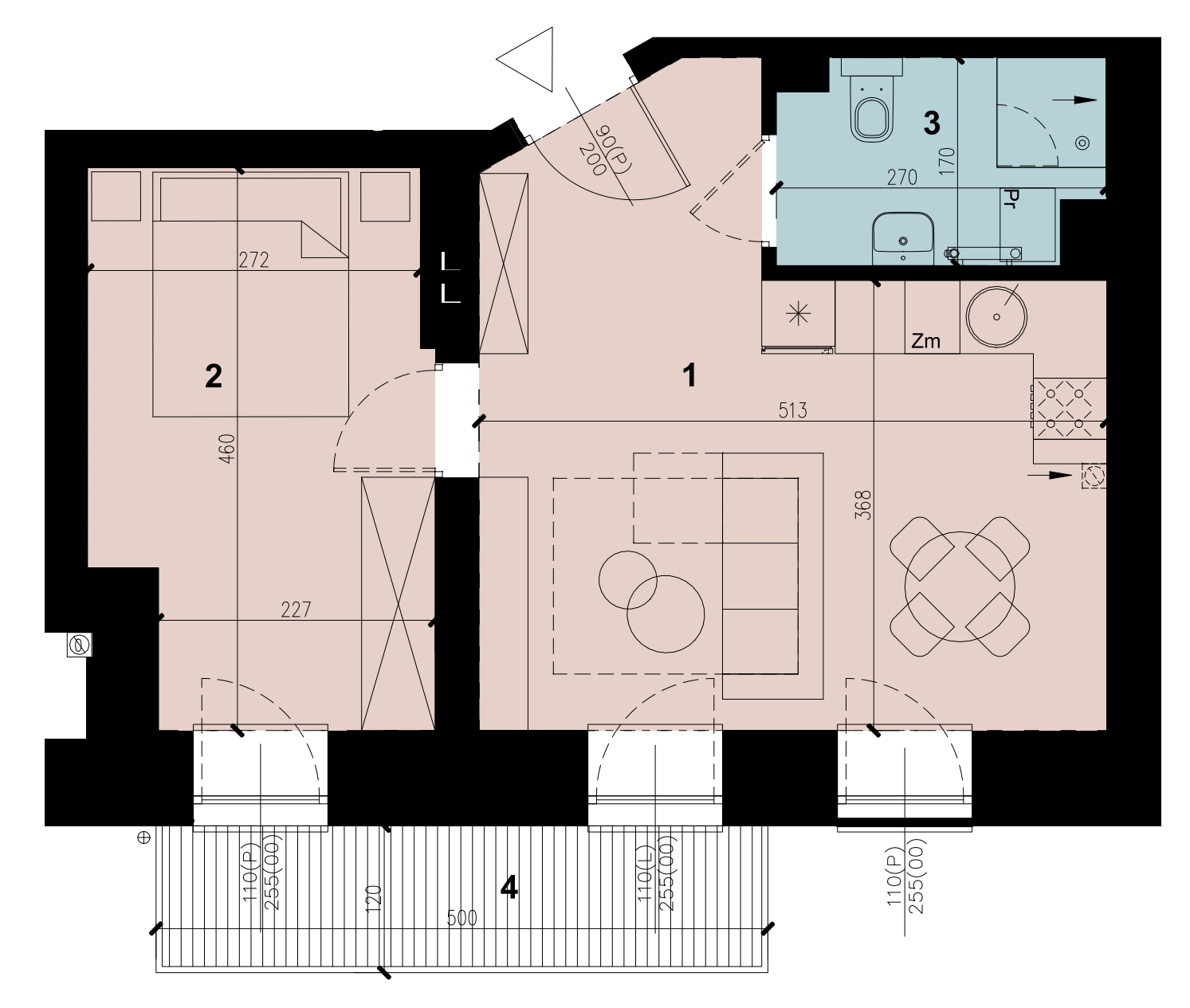
Wolne Mieszkanie M.1.7 Budynek B1 Piętro 1 Powierzchnia 42,42 m2 Pokoje 2 Aneks kuchenny 602 364 zł 14 200 zł / m2 Cena brutto (VAT 8%) Historia ceny Prospekt informacyjny