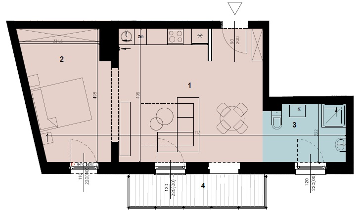
Sprzedane Mieszkanie M.4.18 Budynek B1 Piętro 4 Powierzchnia 47,55 m2 Pokoje 2 Aneks kuchenny Historia ceny Prospekt informacyjny